Лебедка ручная барабанная консольная SW K LAMBDA BGV C1 300 кг для театра (2 каната)
Стоимость уточняйте у менеджера или по телефону +7(495)542-40-78
Цена на лебёдку без каната. Канаты и крюки по запросу.
Эта лебёдка соответствует европейскому стандарту для подъёма грузов над людьми BGV C1, поэтому может использоваться для театральных декораций, занавесов, подъёма оборудования. Это самый высокий стандарт безопасности, всегда можно быть уверенным, что груз не сорвётся на людей посреди представления, и не разобьётся дорогая хрустальная люстра.
Основные преимущества
-
Наивысший стандарт безопасности
-
Грузоподъёмность 300 кг
-
Оцинкованный корпус
-
Увеличенный вдвое коэффициент запаса прочности
-
Два независимых тормоза, удерживающих груз в любом положении
-
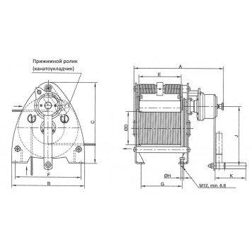
Тросоукладочный валик для ровной намотки троса даже при отсутствии нагрузки на лебёдке
-
Барабан с канавками для намотки троса, увеличивает срок службы троса
-
Высокий КПД
На заказ
-
На заказ удлинённый барабан и барабан с разделителями на несколько тросов
-
Барабан увеличенной тросоёмкости
-
Барабан на 2 или 3 троса, разделителями
Размеры
| Артикул | 30272015 | 30272017 |
|---|---|---|
| A, мм | 379 | 469 |
| B, мм | 310 | 310 |
| C, мм | 340 | 340 |
| Ø D, мм | 140 | 140 |
| E, мм | 180 | 270 |
| F, мм | 280 | 280 |
| G, мм | 175 | 265 |
| Ø H, мм | 13 | 13 |
| J, мм | 250 | 250 |
| Ø K, мм | 130 | 130 |
Мы охотно ответим на все ваши вопросы по телефону: +7 (495) 542-40-78 или по электронной почте: info@pfaff-silberblau.ru
