Захват "мягкий" с цепью Tigrip TSB
Стоимость уточняйте у менеджера или по телефону +7(495)542-40-78
Внимание! На сайте указана цена модели TSB 0,75/65 грузоподъемностью 750 кг.
Стоимость захватов с другой грузоподъемностью можно узнать у наших менеджеров.
Отличная модель захвата для манипуляций с листовым грузом, в том числе с чувствительной поверхностью.
Захват Tigrip TSB имеет параллельно расположенные зажимы, которые равномерно распределяют усилие на относительно большую площадь поверхности, что делает его привлекательным для использования с листовым грузом, имеющим чувствительную поверхность (ДСП, металлические плиты и тп.).
Защитные протекторы из бремзита обеспечивают превосходный коэффициент трения, тем самым увеличивая силу удержания зажимами. При необходимости протекторы могут быть легко заменены.
По аналогии с универсальным захватом эта модель имеет большую ширину зева и блокирующий замок для безопасности.
При работе с этим и другими захватами необходимо помнить, что поверхность поднимаемого материала и колодки с протекторами должны быть чистыми, без жира и грязи!
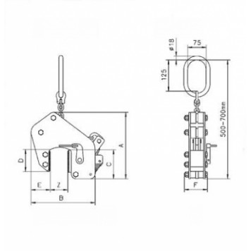
Параметры моделей
| Модель | Номер EAN 4025092* | Грузо - подъем - ность (кг) | Зев, Z (мм) | Собств. масса (кг) | Артикулы |
| TSB 0.75/65 | *550826 | 750 | 0 - 65 | 11,8 | N51202202 |
| TSB 1.25/65 | *550727 | 1250 | 0 - 65 | 16,7 | N51202203 |
Размеры
| Модель | TSB 0.35/65 | TSB 0.75/65 | TSB 1.25/65 |
| A,мм | 270 | 270 | 270 |
| B,мм | 260 | 260 | 260 |
| C,мм | 128 | 128 | 128 |
| D,мм | 100 | 100 | 100 |
| E,мм | 65 | 65 | 65 |
| F,мм | 78 | 78 | 78 |
Мы охотно ответим на все ваши вопросы по телефону: (495) 542-40-78 или по электронной почте: info@pfaff-silberblau.ru

